2025恒大天府半岛(售楼处)首页网站-成都恒大天府半岛售楼处欢迎您-周边配套-楼盘详情-最新价格@售楼处
扫描到手机,新闻随时看
扫一扫,用手机看文章
更加方便分享给朋友
「恒大天府半岛」销售中心电话:028-84363344 【营销中心】
楼盘详情介绍丨最新售价丨户型鉴赏丨周边配套丨在线咨询
如需了解最新房源信息_咨询优惠政策_请拨打上方售楼部电话!
【项目概况】
占地面积:131亩
产品类型:32层高层住宅
首批房源:77号楼(共80栋)
户型配置:3梯4户
建筑面积:121-142㎡(1-2号房142㎡,3-4号房121㎡)
空间利用率:142㎡户型90%,121㎡户型89%
公摊面积:23%
园林绿化:35%
容积指标:4.9
物业服务:金碧物业(3元/㎡/月)
装修标准:3200元/㎡(含地暖+新风系统)
参考均价:13000-15000元/㎡
房源总量:512套
交付时间:2026年6月
【核心优势】
坐拥麓湖板块稀缺资源,首付20万+即可入手三房双卫臻品。3T4梯户配置保障出行效率,精工匠筑品质人居。

【区位价值】
作为国家级新区核心板块,天府新区2023年GDP达4632.8亿元(增速6.9%),位列全国新区第五。区域已形成"一带两翼一城六区"发展格局,正加速建设西部高端服务业中心和国家自主创新示范区。凭借得天独厚的政策优势与产业集聚效应,这里已成为成都"双核共兴"战略的重要引擎。(数据来源:天府发布官方公众号)

【生态景观】
七期楼栋毗邻规划中的生态公园,推窗可见绿意盎然的自然景观。社区内配置多功能健身场地,实现下楼即享运动休闲,归家即是度假体验。
【置业机遇】
本批次推出建面120-140㎡精装华宅,13000元/㎡起抢占天府新区价值洼地。坐享锦江生态带与麓湖商圈双重配套,以稀缺生态资源重塑高端生活范式。

【全能配套】
商业体系:1公里直达麓坊中心,畅享公园式购物体验。周边聚集和悦广场、三利爱琴海、天府大悦城等高端商业体,98.7亩五期地块规划打造特色商业街区,满足多元消费需求。
教育资源:社区配建幼儿园及小学,毗邻金苹果河畔新世界幼儿园(市一级园)。规划中的吊金滩天桥建成后,2公里范围内可达天府七中、实验外国语学校(西区)等优质学府,提供公立私立双重教育选择。
生态资源:3公里范围内坐拥锦江生态带、天府森林公园等城市绿肺,红石公园等生态矩阵环伺,打造全天候自然栖居体验。

交通网络:立体化交通体系包含天府大道、剑南大道等城市主干道,地铁1号线广福站便捷接驳。规划中的高铁天府站(2025年建成)将进一步提升区域通达性。
医疗配套:周边布局四川泰康医院、华西天府医院等三甲医疗资源,天府新区人民医院提供全方位健康保障。
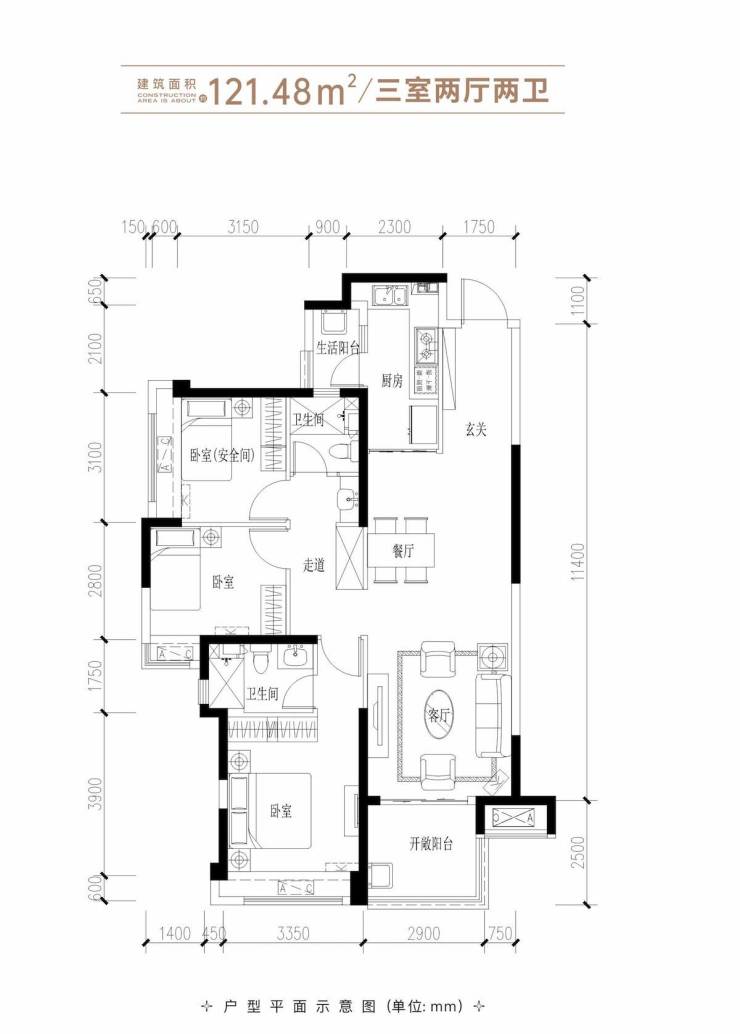
【臻品户型】
三房户型:创新动静分区设计,全屋配置景观飘窗。约6米宽厅连接270°观景阳台,主卧套房保障私密性,次卧瞰景阳台拓展生活场景。
四房户型:餐厨阳台一体化布局,会客空间彰显大家风范。主卧套房配备独立衣帽间,打造专属私密空间。
「恒大天府半岛」销售中心电话:028-84363344 【营销中心】
楼盘详情介绍丨最新售价丨户型鉴赏丨周边配套丨在线咨询
如需了解最新房源信息_咨询优惠政策_请拨打上方售楼部电话!
声明:本文由入驻焦点开放平台的作者撰写,除焦点官方账号外,观点仅代表作者本人,不代表焦点立场。
