成都k101广场售楼处电话丨k101广场营销中心电话丨地址丨户型价格|楼盘详情
扫描到手机,新闻随时看
扫一扫,用手机看文章
更加方便分享给朋友
【合信k101广场】销售热线:028-84363344 【营销中心】
项目详情丨实时报价丨户型解析丨配套详解丨专业在线咨询
获取最新房源动态及优惠信息,欢迎致电售楼处!
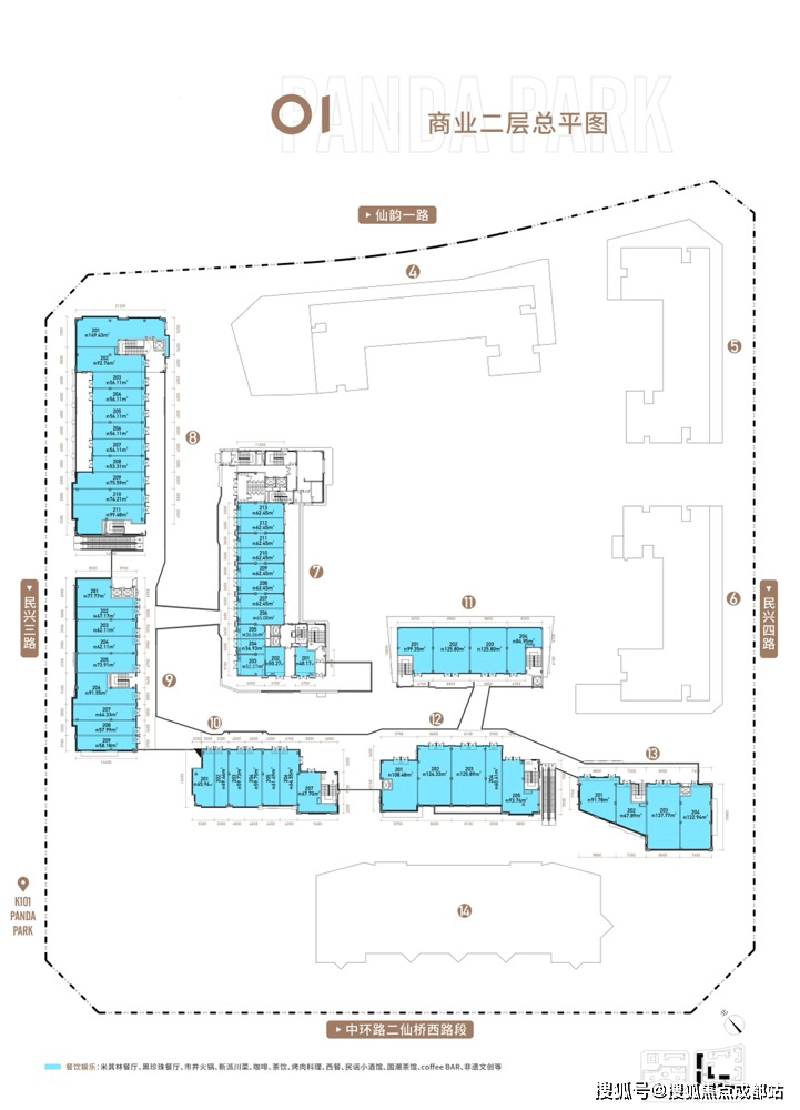
【项目概况】
作为二八板块核心商业地标,合信k101广场由成都知德置业斥资30亿打造,总占地87亩,分两期开发。一期占地45.8亩,二期41.6亩,总建筑面积达27万方,涵盖LOFT商办与中环黄金商铺两大业态。
【规划参数】
• 综合容积率3.5(一期2.6,二期4.5)• LOFT商办:4.2米层高,一期2521套• 商铺产品:1-2层199席,面积12-80㎡灵活组合• 物业标准:5栋清水交付,6栋提供精装服务• 物业费:商业8元/㎡·月,LOFT 5元/㎡·月
【区位价值】
项目位居成都CCD中央文创商务区核心,坐享"三横三纵"立体交通网络:• 双地铁:7号线(环线)、17号线(在建)• 双TOD:二仙桥站、八里庄站• 教育医疗:七中英才等6所优质学府环绕,华西第二医院等三甲医疗配套

【商业旗舰】
项目创新打造PANDA PARK热带雨林主题购物公园,包含:• 亚洲首创熊猫造型玻璃穹顶建筑群• 沉浸式雨林生态场景:彩虹瀑布、玻璃栈道等101个特色节点• 业态规划:国际轻奢、首店经济、文创体验等多元组合


【商铺亮点】
中环黄金商铺具备三大核心优势:1. 业态灵活:餐饮铺标配烟道燃气,支持24小时经营2. 空间增值:部分赠送屋顶露台,二层商铺带花园3. 主力店护航:已规划精品超市+影院双引擎

【LOFT优势】
5.0版精奢LOFT产品特色:• 海岛度假式园林:5800㎡中央庭院,90米超宽楼距• 铂金会所配套:共享厨房、健身中心等圈层设施• 创新户型:24-34㎡魔方空间,4.2米层高实现功能分区


【开发进度】
一期计划2026年9月交付商业街及5栋LOFT,6栋精装产品将于2027年3月竣备。当前主推5、6栋LOFT及5、6、9、10栋商铺。


【投资价值】
项目坐享三大增值引擎:1. 文创产业集群:毗邻东郊记忆艺术区,汇聚头部文创企业2. 高端居住区:周边规划新增15万高净值人群3. 文旅动线:串联熊猫基地-春熙路的黄金旅游带



【合信k101广场】尊享热线:028-84363344 【营销中心】
专业顾问一对一服务丨实景样板间预约丨独家优惠申请
把握稀缺资产配置机遇,立即致电咨询!
声明:本文由入驻焦点开放平台的作者撰写,除焦点官方账号外,观点仅代表作者本人,不代表焦点立场。
