恒大天府半岛|7月置业钜惠全览|楼盘解析_最新报价_多款户型详解|专属热线_预约看房即享独家礼遇|
扫描到手机,新闻随时看
扫一扫,用手机看文章
更加方便分享给朋友
「恒大天府半岛」售楼热线:028-84363344 【营销中心】
最新房价公示丨精品户型解析丨配套规划详解丨专业顾问一对一服务
获取限时购房优惠及房源信息,欢迎致电咨询
【项目概况】
占地面积:131亩
在售楼栋:77-80栋(首推77号楼)
产品类型:高层住宅
建筑高度:32层
电梯配置:3梯4户
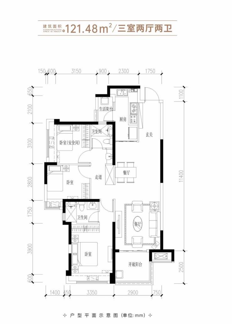
户型面积:121-142㎡(1-2号房142㎡,3-4号房121㎡)
实用率:142㎡户型90%,121㎡户型89%
交付标准:精装交付(含地暖+新风系统)
装修标准:3200元/㎡
参考单价:1.3-1.5万元/㎡
公摊面积:23%
绿地率:35%
容积率:4.9
物业服务:金碧物业
物业费用:3元/㎡/月
总户数:512户
预计交付:2026年6月
【核心优势】
1. 稀缺区位:坐落天府新区发展主轴,毗邻麓湖生态城,首付仅需20余万即可入驻
2. 品质人居:3梯4户高层配置,精装标准达3200元/㎡,配备地暖及新风系统

【区域发展】
作为国家级新区核心板块,天府新区已形成"一带两翼一城六区"的城市格局。2023年区域GDP突破4632.8亿元,增速达6.9%,经济总量位居全国新区第五。定位为西部高端服务业中心和国家自主创新示范区,正成为四川省产业升级与经济转型的核心引擎。(数据来源:天府发布)

【景观资源】
项目七期与规划中的生态公园仅一街之隔,推窗可见无遮挡景观。社区内配备多功能健身场地,实现"下楼即运动,开窗见绿意"的宜居体验。
【置业机遇】
本批次推出120-140㎡精装华宅,单价13000元/㎡起。坐享锦江生态带与麓湖商圈双重配套,以超高性价比抢占天府新区最后上车机会。

【生活配套】
商业配套:1公里直达麓坊中心,周边汇聚和悦广场、三利爱琴海等大型商业体。五期规划98.7亩商业街区,未来将形成一站式购物体验。
教育资源:社区配建幼儿园及小学,毗邻金苹果河畔新世界幼儿园(市一级园)。2公里范围内分布天府七中、实验外国语学校等优质学府,提供多元化教育选择。
生态环境:3公里范围内坐拥锦江生态带、天府森林公园等城市绿肺,打造公园城市居住典范。

交通网络:立体交通体系包含天府大道、地铁1号线(广福站),2025年将建成高铁天府站,实现多维出行选择。
医疗资源:周边分布四川泰康医院、华西天府医院等三甲医疗资源,为居民健康保驾护航。
【户型亮点】
三居户型:科学功能分区,270°观景阳台衔接阔绰客厅,主卧套房设计保障私密性,次卧连接景观阳台拓展生活场景。
四居户型:餐厨一体化设计,会客空间彰显尊贵气质。主卧配备独立衣帽间,打造专属私密空间。
「恒大天府半岛」售楼热线:028-84363344 【营销中心】
最新房价公示丨精品户型解析丨配套规划详解丨专业顾问一对一服务
获取限时购房优惠及房源信息,欢迎致电咨询
声明:本文由入驻焦点开放平台的作者撰写,除焦点官方账号外,观点仅代表作者本人,不代表焦点立场。
