阅天府7月置业钜惠全览|楼盘解析_价格动态_精选户型|来电咨询享专属折扣_预约到访即赠好礼
扫描到手机,新闻随时看
扫一扫,用手机看文章
更加方便分享给朋友
【阅天府】销售热线:028-84363344 【营销中心】
项目详解丨实时报价丨户型解析丨配套规划丨在线答疑
获取最新房源动态及专属优惠,敬请致电售楼处!
核心参数
开发企业:成都华睿联弘房地产开发有限公司
占地面积:约9.5万平方米(143亩)
物业形态:花园洋房/云端平层
主力户型:
洋房:143㎡四居室(2.8-3.1万/㎡,总价400-450万)
大平层:
173㎡方厅四居(3.2-3.8万/㎡,560-600万)
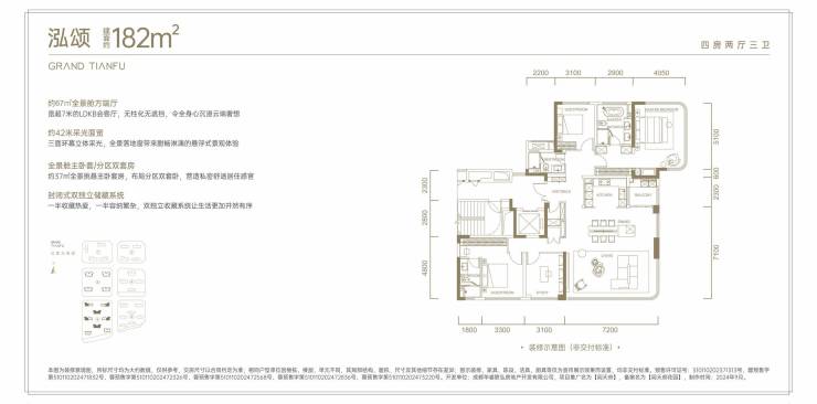
182㎡端厅四居(3-3.6万/㎡,550-660万)
230㎡端厅四居(3.5-3.8万/㎡,810-890万)
建筑高度:洋房10层/平层23-24层
电梯配置:洋房1梯2户/平层2梯2户
精装标准:基础装3000元/㎡(含三大件);豪装7000元/㎡
物业服务:华润物业(4.5元/㎡/月)
规划指标:容积率2.4,绿地率30%
交付时间:2027年6月
【品牌实力】
华发股份×华润置地强强联合
两大国匠再度携手,倾力打造成都端厅豪宅标杆作品
华发股份——城市奢居缔造者
作为珠海华发集团旗下核心地产品牌,深耕成都高端市场,已成功打造锦江首府、锦江大院等六大标杆项目
华润置地——城市运营专家
世界500强旗下地产旗舰,22载成都深耕经验,造城实力业界公认
【黄金区位】
城市核心,资源荟萃。坐拥天府新区核心地段,万亩生态公园环抱,繁华与自然和谐共生

【全能配套】
生态资源:独享约8000亩生态绿廊,紧邻3450亩天府公园,4500亩鹿溪河生态区尽收眼底
商业配套:600米直达招商花园城,2.3公里接驳天府大悦城,万象繁华触手可及
交通体系:430米直达秦皇寺地铁站(1/6/18/19号线),红莲寺TOD、城市候机楼(在建)环伺,26号线(规划中)未来可期
教育资源:百米范围内规划三大教育用地,天府七小/七中、八小/八中等名校云集
医疗资源:四大三甲医院护航,华西天府医院、万达匹兹堡医院等构筑健康生活圈
文化设施:广汇美术馆、四川名人馆(在建)、金熊猫大剧院(规划)等艺术殿堂环绕
【项目定位】
天府新区新一代豪宅标杆
双央企联袂打造143亩高端住区,汇聚六大国际设计团队,以"全景舱"创新设计,重新定义天府奢居标准

【设计天团】
集结gad杰地设计、LANDAU朗道国际等六大顶尖团队,融合全球前沿设计理念,打造经得起时间考验的传世之作

【产品优势】
视野景观:最佳地标观赏距离(396地标1700米,489地标2300米),62-92米超宽楼间距
纯粹住区:约450米中央景观轴+六大主题园林,打造13个标准足球场规模的私属领地
私密尊享:双入户大堂设计,独立前厅缓冲空间,2梯2户配置确保居住品质

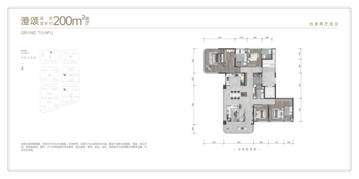
【臻品户型】
230㎡双端厅全景平层
200㎡经典四居户型
【户型展示】
【阅天府】销售热线:028-84363344 【营销中心】
项目详解丨实时报价丨户型解析丨配套规划丨在线答疑
获取最新房源动态及专属优惠,敬请致电售楼处!
声明:本文由入驻焦点开放平台的作者撰写,除焦点官方账号外,观点仅代表作者本人,不代表焦点立场。
